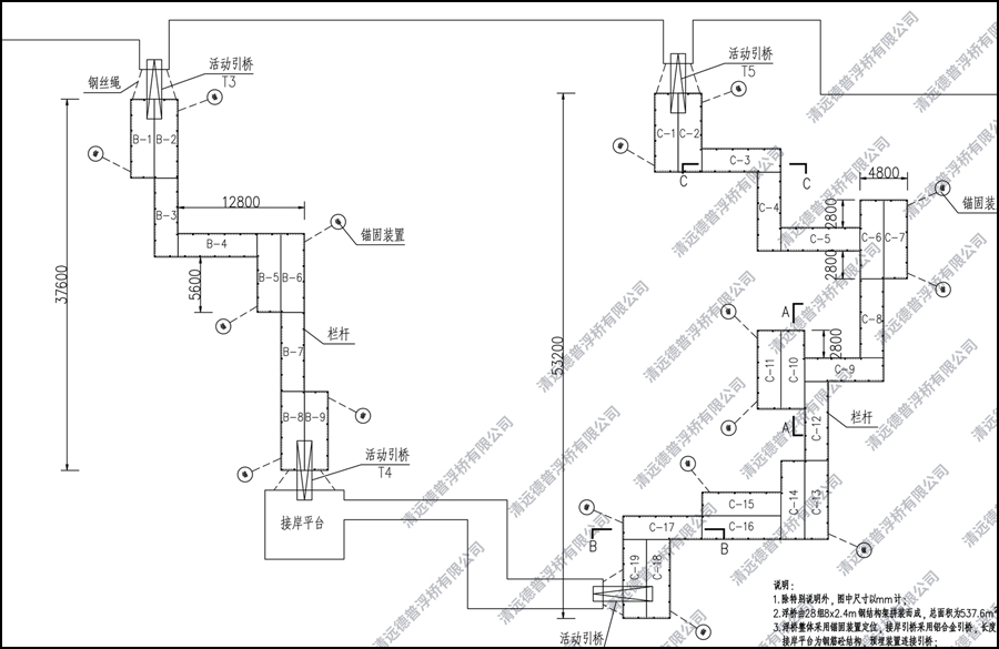
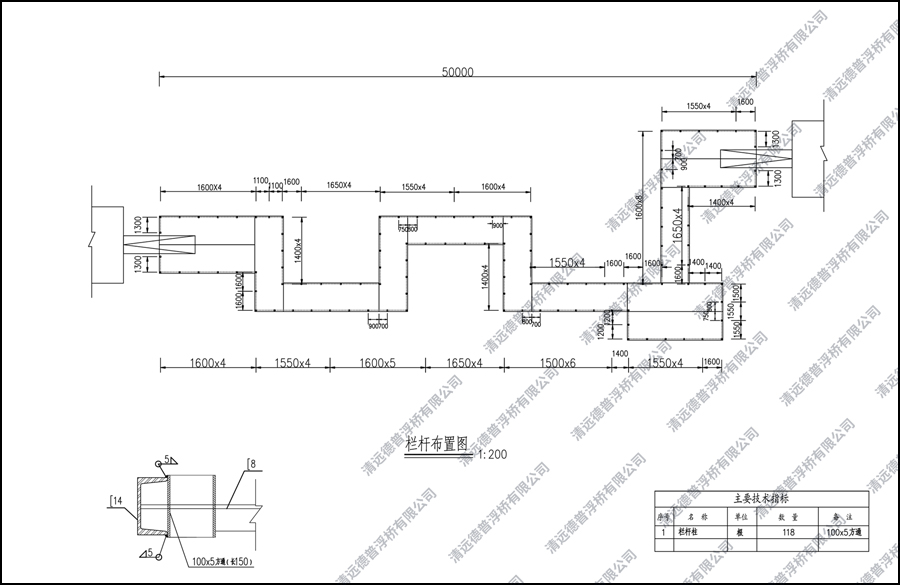
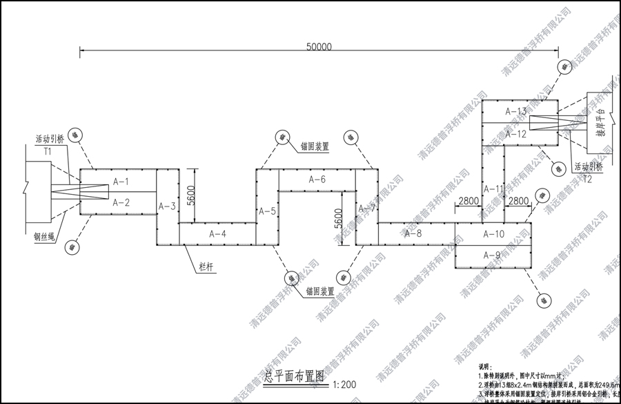
(1)項目總述
項目名稱:珠海橫琴濕地公園浮橋
項目地點:珠海市橫琴
建設規模:250平方米
項目階段:設計、施工
設計單位:廣州中土文旅規劃設計有限公司
建造單位:清遠德普浮橋有限公司
(2)項目概況
珠海橫琴浮橋長120米,項目從設計到施工,12天內完成,創下行業內新 速度,德立這一壯舉是堅持自主創新、自主知識產權的獨具風格,該橋的設計主要是采用鋼結構受力件、防腐木板及PE塑料浮箱等材料制作而成,設計受載300公斤 / 每平方米,最大落差 2.0 米 ,浮橋兩側設有水上平臺可供游客觀賞及休息,全面體現了設計的人性化及完美度。






